
2,990 SqFt
2,990 SqFt
Key Details
Property Type Multi-Family
Sub Type Duplex
Listing Status Active
Purchase Type For Sale
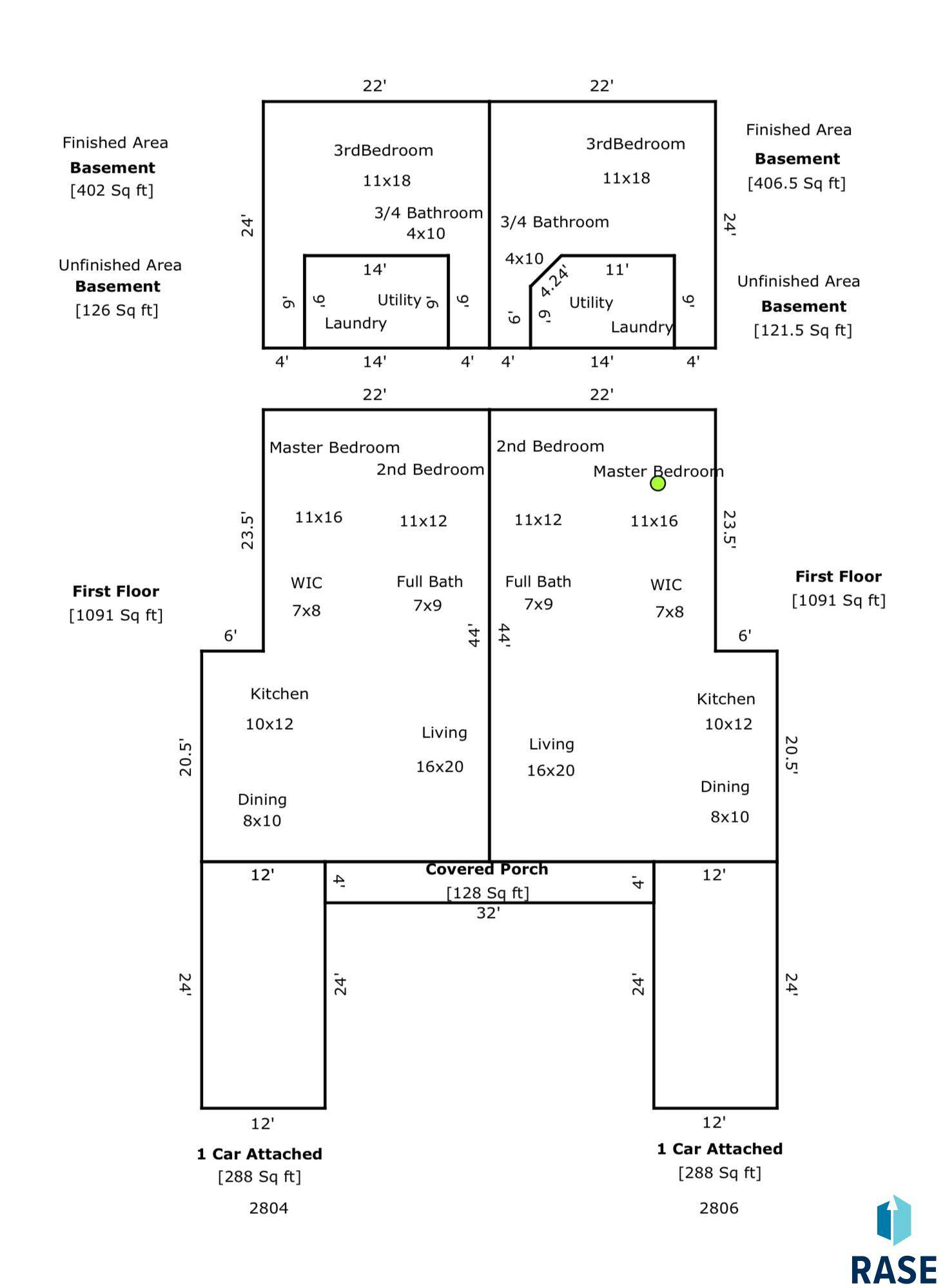
Square Footage 2,990 sqft
Price per Sqft $142
Subdivision Wallner Addn
MLS Listing ID 22507707
Year Built 1970
Property Sub-Type Duplex
Property Description
Each side of the duplex has a single attached garage.
TAKE THEM UP A NOTCH TO CREATE HIGH END LUXURY DUPLEXES.
Be sure to see the other two neighboring Duplexes for sale.
**2803-2805 S. Main Avenue and 2808/2810 S. Main Avenue.
**Buy one Duplex or buy all three. Each Duplex is $425,000
Location
State SD
County Minnehaha
Area Sfc014
Rooms
Basement Partial
Interior
Heating Forced Air
Flooring Vinyl, Laminate
Exterior
Exterior Feature Hard Board, Stone/Stone Veneer
Roof Type Shingle Composition
Building
Foundation Block
Sewer City Sewer
Water City Water
Schools
Elementary Schools Robert Frost Es
Middle Schools Patrick Henry Ms
High Schools Lincoln Hs
School District Sioux Falls
Others
Miscellaneous Separate Meters,Individual Heat and Air


"My job is to find and attract mastery-based agents to the office, protect the culture, and make sure everyone is happy! "





